ご出発の5日前まで予約が可能です
※お子様の年齢は旅行開始当日の年齢を選択してください。
※幼児はフライトの座席が同伴者の膝上となりますが、お申込み人数に含めてください。
※幼児とはご搭乗日の年齢が以下の場合
- 【JAL・スカイマーク】0~2歳
- 【ピーチ】0~1歳
- 【ジェットスター・SPRING JAPAN】ご予約不可






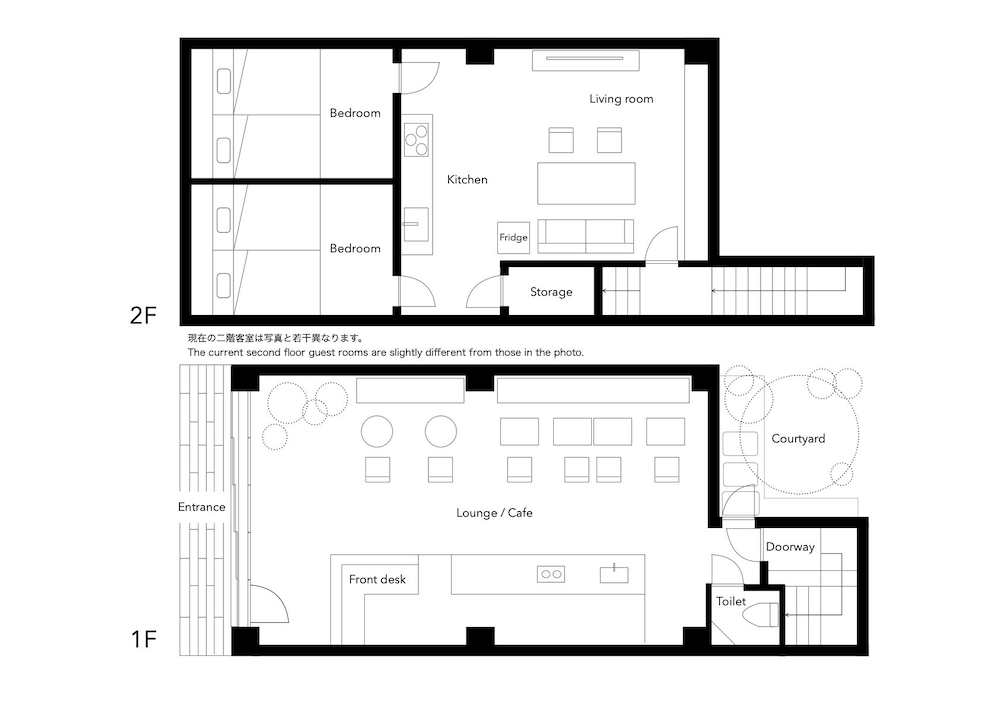
バケーションホームには冷蔵庫とオーブン付きのキッチンが備わり、快適にお過ごしいただけます。65 インチのスマートテレビ (デジタル番組視聴可) のほか、WiFi (無料)もご利用いただけます。セーフティボックスと電子レンジをご利用いただけます。
客室・プラン
![]() | 2025 11-10 ~ 2025 11-11 | 大人2名 子ども0名 | 1室 |
---|
絞り込み検索
ベッドタイプ
食事タイプ
その他


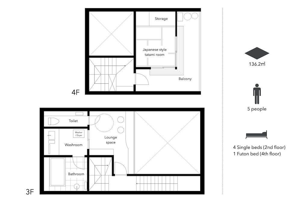
ルーム 2254
シングルベッド 4 台およびシングル布団 1 組
131㎡
定員:5名
禁煙
Wi-Fi(無料)
この部屋の最安値
(税込)
- 朝食付
- 夕食付
- Wi-Fi無料
10月19日までキャンセル無料


















シングルベッド 4 台およびシングル布団 1 組
131㎡
定員:5名
禁煙
Wi-Fi(無料)
シングルベッド 4 台およびシングル布団 1 組
客室の広さ : 131 平方メートル、バルコニーあり
客室の構成 - 3 室のベッドルーム、リビングルーム、応接スペース
リラクゼーション - 屋内貸切風呂 (沸かし湯)
インターネット - WiFi (無料)
エンターテイメント - 65 インチのスマートテレビ (デジタルチャンネル)
お食事とお飲み物 - 冷蔵庫、コンロ、オーブン、電子レンジを備えたキッチン
寝具 - ベッドシーツ
バスルーム - 専用バスルーム、シャワー付き浴槽、洗浄機付トイレ、およびスリッパ
その他の設備 - 洗濯機 / 乾燥機、デスク、セーフティボックス
室内環境 - 冷房、暖房、畳
特記事項 - ベビーベッドまたは可動式 / エキストラベッド無し
禁煙
客室 / ベッド タイプはチェックイン時の利用状況によってはご希望に添えない場合があります
条件にあったプランがみつかりませんでした。
恐れ入りますが、条件を変更して再度検索をお願い致します。
口コミ・レビュー
- 清潔度 5.0
- スタッフとサービス 0
- 設備やアメニティ 5.0
- 施設のコンディションと設備 5.0
Verified traveler
- ★
- ★
- ★
- ★
- ★
5 非常に良い
新築一軒家、町家形式だがモダンでセンスが光宿、家族連れで数日滞在におすすめ、宮川筋にあり場所も最高
町家をリノベした一軒家宿は増えているが、町家形式を生かしてゼロからモダンに仕上げた建物はセンスが良く築浅で清潔、キッチンもあり数日から長期の滞在、特に家族連れには最適。舞妓さんが行き来する宮川筋にあり、祇園を横目に京都らしさを味わえてとても便利な場所。四条河原町、錦市場にも徒歩可能。川を渡れば木屋町、おいしいレストランや川床のある店も多数あって食べるところにも困らない。1Fはレセプション兼Cafeになっていて毎日スムージーやカフェを頂けるのもGOOD。スタッフの皆さんのホスピタリティも最高。おすすめです。
2020年09月03日
Lankhanh
- ★
- ★
- ★
- ★
- ★
5 非常に良い
Amazing place in a perfect location in Gion
Highly recommend this place to stay in Kyoto, so close to Gion, wonderful restaurants, and transport. The accommodation is so spacious, well equipped, clean and has a wonderful feel with an amazing wooden bath. Special thanks to Yui who works the front desk and the Cafe. She was wonderful, so friendly, helpful and welcoming to us. It's an amazing place and we would definitely return next time.
2025年01月08日
JAMES
- ★
- ★
- ★
- ★
- ★
5 非常に良い
Fantastic 4 night stay for our family of 4
Great location and base in Gion
Highly recommend2024年09月23日
Heather
- ★
- ★
- ★
- ★
- ★
5 非常に良い
Great design and location.
We loved the place. Out of the hussle but blocks from activity. The house is beautifully designed and modern. Very thoughtfully decorated with simple touches. It was fun being above a cafe, where staff were helpful and welcoming. The only drawback for us was the beds and pillows -they were just too hard to get a good nights sleep. The linens were soft but our backs hurt until stretching.
2024年07月27日
Lana
- ★
- ★
- ★
- ★
- ★
5 非常に良い
Gorgeous house with stunning architecture. Everything was amazingly clean and well stocked. We needed to configure the beds differently and Yui helped us add a futon to the top floor. All the bedding was comfortable and so clean. the A/C kept us cool in the summer heat, even in the top floor room. It's great having the cafe downstairs - they received our luggage prior to arrival, and helped us with restaurant recommendations. We even got welcome drinks! The location is unbeatable - steps from Gion station and such a great central hub for exploring Kyoto. Quick walk to many sights and good restaurants. You won't want to leave!
家族旅行 2024年06月24日
地図・アクセス
住所 | 京都府京都市東山区宮川筋 2-254 |
---|---|
交通 | このバケーションホームは京都市の中心部の、四条通や河原町通へ 5 分とかからない便利な場所にあります。 このバケーションホームは、先斗町まで 0.4 km、八坂神社まで 0.8 km の場所にあります。 |
周辺情報 |
▼もっと見る |
基本情報
- 館内施設・サービス
- ・入り口までの道が明るい
- ・上層階は階段でのみアクセス可
- ・全館禁煙
- ・セーフティボックス (フロントデスク)
- ・庭園
- ・車椅子対応 – なし
- ・ランドリー設備
- ・手荷物保管サービス
- ・階段の手すり
- ・フロントデスク (時間限定)
- ・テラス
- ・WiFi (無料)
- ・コンシェルジュ サービス
- 客室設備・アメニティ
- ・暖房
- ・禁煙
- ・テレビ
- ・洗浄機付トイレ
- ・床暖房
- ・デジタル チャンネル
- ・電気ケトル
- ・冷凍庫
- ・洗濯洗剤
- ・Smart TV
- ・製氷機
- ・冷蔵庫
- ・ワードローブまたはクローゼット
- ・浴槽またはシャワー
- ・コーヒー / ティーメーカー
- ・WiFi (無料)
- ・デスク
- ・可動式ベッド / エキストラベッドなし
- ・ベビーベッドなし
- ・バルコニー
- ・タオルあり
- ・ベッドシーツあり
- ・ホットプレートまたはグリルプレート
- ・トイレットペーパー
- ・シャンプー
- ・畳部屋
- ・炊飯器
- ・テレビのサイズの測定単位 : インチ
- ・スリッパ
- ・コンロ
- ・シャワー付き浴槽
- ・専用バスルーム
- ・屋内プライベート浴場 (沸かし湯)
- ・洗濯機 / 乾燥機
- ・バスアメニティ (無料)
- ・ヘアドライヤー
- ・冷房
- ・テレビのサイズ : 65
- ・アイロン / アイロン台
- ・セーフティボックス (客室内)
- ・キッチン
- ・調理器具および食器類
- ・独立した応接エリア
- ・電子レンジ
- ・ボトルウォーター (無料)
- ・客室タイプおよびベッドタイプはチェックイン時の空室状況による
- ・ペーパータオル
- ・オーブン
- ホテルご利用にあたって
【チェックイン】
15:00 〜 深夜 0 時
チェックインの最低年齢 : 20 歳【チェックインに関する特記事項】
フロントデスクは、毎日 9:00 ~ 18:00 まで営業しています。24 時間前までに施設にご連絡の上、チェックインをご手配ください。連絡先は予約確認通知に記載されています。ご到着が 18:00 を過ぎる場合は、事前に施設までご連絡ください。連絡先は予約確認通知に記載されています。通常のチェックイン時間外にご到着予定の場合は、事前に宿泊施設にご連絡のうえ、チェックインの手順とアクセスコードをご確認ください。時間帯によっては、フロントデスクのスタッフは不在となります。【チェックアウト】
正午【ご宿泊に関して】
- 施設の定める利用規約に従って、追加ゲスト料金がかかる場合があります
- 場合により、チェックイン時に政府発行の写真付き身分証明書と付随費用精算のためのクレジットカード / デビットカードのご提示、または現金でのデポジットのお支払いが必要です
- 宿泊施設への要望は、チェックイン時の状況によりご希望に添えない場合があり、内容によっては追加料金が発生することがあります。対応は確約ではございませんのでご了承ください
- 施設でのお支払いにはクレジットカードをご利用いただけます。現金ではお支払いいただけません
- この宿泊施設は、到着前に宿泊者のクレジットカードの事前承認を行う権利を有します。
- 施設における一酸化炭素検知器の有無について、オーナーから情報提供はありません。ポータブル検知器の持ち込みをご検討ください
- 施設における煙感知器の有無について、オーナーから情報提供はありません
- この施設には、バルコニー、パティオ、テラスなど安全面からお子様に適さない可能性がある屋外スペースがあります。ご心配な場合は、ご到着前に施設にお問い合わせの上、適切な客室に宿泊できるか確認することをおすすめします。
【サービス料に含まれていないもの】
宿泊施設にて、次の追加料金をお支払いいただきます。料金には税金が含まれる場合があります :
- 施設にて市税のお支払いが必要な場合があります。税額は 1 泊の宿泊料金に基づき、1 泊 1 名につき 200 ~ 10,000 円です。非課税となる場合もあります。詳細は施設にお問い合わせください。連絡先は、予約手続完了後に送られる予約確認通知に記載されています。
宿泊施設より弊社に提供された、すべてのご請求に関する情報を表示しています。
【オプションの追加料金】
- レイトチェックアウトには料金がかかります
上記項目以外にも、現地にてお支払いが必要な場合があります。また料金とデポジットには税金が含まれていないことがあり、金額が変更される場合があります。
※食事つきプランでご予約をお申し込みの場合は、プランに料金が含まれています。但し、添い寝のお子様のお食事代金は、別途現地にてお支払いいただく場合がございます。
詳細はご宿泊施設までお問い合わせください。【その他の情報】
- 日本の厚生労働省は、インやホテル、モーテルなどを含むいかなる種類の宿泊施設でも、日本に居住してない海外のお客様の宿泊に際し、国籍および旅券番号の確認とパスポートのご提示を義務付けております。また、各宿泊施設には、ご宿泊者全員のパスポートをコピーし保存する義務が課せられておりますので、ご協力をお願いいたします。
- 非対面式のチェックイン、非対面式のチェックアウトをご利用いただけます。
【ペット】
・ペット不可【お子様及びエキストラベッドのご利用について】
・この施設には大人の方のみ宿泊できます。
閲覧履歴

- すべての写真(25)
- 部屋(16)
- 食事(1)
- 外観(3)
- 内観(4)
- その他(1)

















































