ご出発の5日前まで予約が可能です
※お子様の年齢は旅行開始当日の年齢を選択してください。
※幼児はフライトの座席が同伴者の膝上となりますが、お申込み人数に含めてください。
※幼児とはご搭乗日の年齢が以下の場合
- 【JAL・スカイマーク】0~2歳
- 【ピーチ】0~1歳
- 【ジェットスター・SPRING JAPAN】ご予約不可






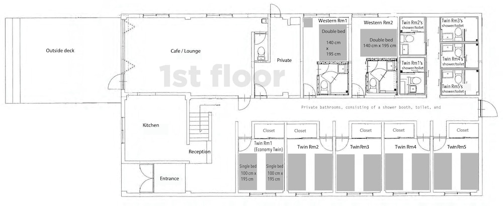
全部で 12 室ある冷房完備の客室で、ご滞在をお楽しみください。客室ではWiFi (無料)をご利用いただけます。バスルームには、シャワー、ヘアドライヤー、バスローブが備わっています。ハウスキーピング サービスは、毎日行われ、追加布団 (無料)のリクエストも受け付けています。
客室・プラン
2025 12-29 ~ 2025 12-30 | 大人2名 子ども0名 | 1室 |
絞り込み検索
ベッドタイプ
食事タイプ
その他

ツインルーム
シングルベッド 2 台
15㎡
定員:2名
禁煙
Wi-Fi(無料)
この部屋の最安値
(税込)
- 朝食付
- 夕食付
- Wi-Fi無料
- 駐車場 (無料)
¥15,131
12月27日までキャンセル無料
- 朝食付
- 夕食付
- Wi-Fi無料
- 駐車場 (無料)
¥17,754
12月27日までキャンセル無料








シングルベッド 2 台
15㎡
定員:2名
禁煙
Wi-Fi(無料)
シングルベッド 2 台
客室の広さ : 15 平方メートル
インターネット - WiFi (無料)
お食事とお飲み物 - 小型冷蔵庫
寝具 - 羽毛布団およびベッドシーツ
バスルーム - 独立した専用バスルーム、シャワー、バスローブ、およびスリッパ
その他の設備 - 現地の地図、レストランガイドあり。追加布団 (無料)もリクエストのうえ利用可
室内環境 - シーツ交換 (要リクエスト)、タオル交換 (要リクエスト)、冷房
特記事項 - 客室清掃 (要リクエスト)
禁煙

トラディショナル トリプルルーム
シングルベッド 3 台
20㎡
定員:3名
禁煙
Wi-Fi(無料)
この部屋の最安値
(税込)
- 朝食付
- 夕食付
- Wi-Fi無料
- 駐車場 (無料)
¥16,333
12月27日までキャンセル無料
- 朝食付
- 夕食付
- Wi-Fi無料
- 駐車場 (無料)
¥18,955
12月27日までキャンセル無料







シングルベッド 3 台
20㎡
定員:3名
禁煙
Wi-Fi(無料)
シングルベッド 3 台
客室の広さ : 20 平方メートル
インターネット - WiFi (無料)
お食事とお飲み物 - 小型冷蔵庫
寝具 - 羽毛布団およびベッドシーツ
バスルーム - 独立した専用バスルーム、シャワー、バスローブ、およびスリッパ
その他の設備 - 現地の地図、レストランガイドあり。追加布団 (無料)もリクエストのうえ利用可
室内環境 - シーツ交換 (要リクエスト)、タオル交換 (要リクエスト)、冷房
特記事項 - 客室清掃 (要リクエスト)
禁煙
条件にあったプランがみつかりませんでした。
恐れ入りますが、条件を変更して再度検索をお願い致します。
口コミ・レビュー
- 清潔度 4.5
- スタッフとサービス 4.7
- 設備やアメニティ 4.3
- 施設のコンディションと設備 4.3
Verified traveler- ★
- ★
- ★
- ★
- ★
4 非常に良い
映画好きのあなたにオススメ
通路に暗幕があり、最初は怪しい雰囲気でした。が、よく見ると各部屋に映画監督の名前がつけられており、ホテル全体が映画館を、各部屋がその監督の作品を思わせる凝った作りであるとわかりました(オーナーさんの趣味とのこと)。そう理解できたら感心し、楽しめました。バスルームはシャワーのお湯がリッチで快適。部屋のカビ臭さだけが少々残念でした。
2025年08月03日
Verified traveler- ★
- ★
- ★
- ★
- ★
4 非常に良い
設備の改善
トイレの鍵と部屋の鍵がなかなか閉まらず苦労しました。そこは改善してほしい点ですが、朝食はとても美味しかったし、スタッフはフレンドリーでした。鍵の件以外は快適に過ごせました。
2025年06月30日
まさよし- ★
- ★
- ★
- ★
- ★
3 良い
スタッフの方がとても丁寧に対応してくださいました。
立地も良くて金額的にも利用しやすいです。家族旅行 2024年09月30日
しんじ- ★
- ★
- ★
- ★
- ★
4 非常に良い
良かったです
グループ旅行 2024年09月29日
ともみ- ★
- ★
- ★
- ★
- ★
4 非常に良い
スタッフの方が気さくでした。島に渡るフェリーが目の前なのでとても便利です。
グループ旅行 2024年09月17日
Zilola- ★
- ★
- ★
- ★
- ★
5 非常に良い
The place was pretty good and very clean. The breakfast was delicious. Most of all, the staff was outstanding. After all, it’s the people who make the journey worthwhile! Thank you for awesome stay!
2024年06月26日
カツヒロ- ★
- ★
- ★
- ★
- ★
5 非常に良い
このタイプのホテルは初めてでしたが、とても快適でした。
また是非とも利用したいと思います。カップルで旅行 2024年02月12日
Ryuya- ★
- ★
- ★
- ★
- ★
5 非常に良い
Best service you can get in the area
Place is very nice, affordable, friendly staff.
Booking was included breakfast, but i was supposed to be checking out 07:00 and breakfast starts 07:30, so they offered me a free beer, scone, and cofee! Definitely recommended.2023年12月13日
yoshinori- ★
- ★
- ★
- ★
- ★
2 普通
寝るだけであれば、良いのですが、夜テレビがないため、時間がつぶせなかった。寝るだけであれば、料金が高いいと思います。
2023年09月28日
Ken- ★
- ★
- ★
- ★
- ★
5 非常に良い
スタッフさんの対応とっても良かったです
子供連れの家族旅行 2023年03月25日
Kumiko- ★
- ★
- ★
- ★
- ★
5 非常に良い
リーズナブルで、水回りは新しく清潔でした、、宇野港が目の前にあり、直島、豊島、犬島への美術鑑賞の拠点として最適でした。
2022年08月05日
Kumiko- ★
- ★
- ★
- ★
- ★
4 非常に良い
カジュアルな雰囲気で気軽に泊まれる感じです。水回りは新しく清潔でした。
2022年08月02日
Seki- ★
- ★
- ★
- ★
- ★
4 非常に良い
スタッフの方が親切でした!
スタッフの方がとても丁寧で、チェックインの際に島の観光のアドバイスもしてくださいました。
駅や港からも近く、観光もしやすかったです!
しいて言えば、エントランスの扉が開けづらく、キャリーケースを持って出入りするのが少し大変だったのと、
専用のバスルームの鍵の開け閉めが難しかったです。。
そのほかはとても良かったので、また瀬戸内国際芸術祭に行く時には、是非利用したいです!
ありがとうございました!2022年05月16日
???- ★
- ★
- ★
- ★
- ★
5 非常に良い
こちらの意向をしっかり聞いてくれて、色々と教えてくれました。
各部屋専用の洗面ブースがあることがとても嬉しかったです。
確かに、今どきな感じではないのですが、「旅」の宿としては十分だと思います。ありがとうございます。家族旅行 2022年03月29日
りょうすけ- ★
- ★
- ★
- ★
- ★
5 非常に良い
スタッフの方がとてもフレンドリーで感じが良かったです。
朝食も美味しかったです。子供連れの家族旅行 2021年12月16日
Verified traveler- ★
- ★
- ★
- ★
- ★
2 普通
コンパクトな施設です
外国人をメインターゲットにしている宿泊施設だと感じました。コンパクトな室内に必要最低限の設備ですが不便さはありませんでした。近隣の食事場所の案内など親切な説明がありました。
2021年11月23日
Verified traveler- ★
- ★
- ★
- ★
- ★
5 非常に良い
初めての利用で不安もありましたが、スタッフの方もとても優しく、安心して過ごせました。シャワールームも綺麗で快適でした。
グループ旅行 2020年01月04日
Rie- ★
- ★
- ★
- ★
- ★
5 非常に良い
宇野港の目の前でとても便利でした!
お姉さんの説明も丁寧親切でとてもたすかりました。2020年01月02日
Verified traveler- ★
- ★
- ★
- ★
- ★
4 非常に良い
全般的に良かった。
家族旅行 2020年01月01日
Verified traveler- ★
- ★
- ★
- ★
- ★
5 非常に良い
スタッフの方の対応がとても良く、いつも旅をさらに良いものにしてくれます。
子供連れの家族旅行 2019年10月22日
Verified traveler- ★
- ★
- ★
- ★
- ★
4 非常に良い
スタッフがとてもフレンドリー!
アート好きの外国人向けのお宿ですね。スタッフはとてもフレンドリーで良かったデス。
バスルームと部屋が完全にセパレートなので不便さは感じました。海外のドミトリーなどで慣れている方であれば外国人とのコミュニケーションも楽しめるお宿だと思います。2019年08月16日
Verified traveler- ★
- ★
- ★
- ★
- ★
4 非常に良い
清潔で、気持ち良かったです。
家族旅行 2019年04月06日
AKIKO- ★
- ★
- ★
- ★
- ★
2 普通
トイレ&シャワーが超不便!
トイレとシャワーが部屋の外にあるのが超不便!
いちいち部屋に鍵をかけてトイレの鍵を開けて用を足して外に出たらまたトイレ&シャワー室の鍵をかけないといけない。
レストランで作っているスコーンは美味しかった。レストランでは手作りにこだわった料理が出て、その点は良かった。2019年04月04日
MIYOKO- ★
- ★
- ★
- ★
- ★
5 非常に良い
宇野港からすぐの所にあり、カフェも併設されており、とても便利です。シャワー、トイレは部屋の外でしたが、部屋毎に専用のもので鍵もかかるので、一人旅でも安心して利用できました。館内は掃除が行き届いておりとても清潔でした。スタッフもとてもフレンドリーで気持ち良く過ごせました。
宇野港を眺めながら食べるカフェでの朝食も美味しかったです。また滞在したいですね。2019年01月01日
ア- ★
- ★
- ★
- ★
- ★
5 非常に良い
駅と港に近い。専用バスルームがある。スタッフが親切。
2018年11月25日
わこきち- ★
- ★
- ★
- ★
- ★
4 非常に良い
外人向けっぽいけど、日本人にも快適で充分!
直島、豊島旅行に利便性とコスパで選びましたが、満足です。
従業員さん、皆、明るく親切。ベッドのリネンやタオルはとても清潔で気持ちいい。朝食もオシャレで美味しい。
今回、運悪く台風の晩にあたってしまい、昼間は近くのお寿司屋さんとスーパー銭湯で楽しく過ごせましたが、6時でお風呂がクローズしてからは、テレビのない狭い部屋で何もする事がなくなってしまったので、その点だけマイナス。台風にあたりさえしなければ、マイナスポイントなしでした。2018年08月30日
Verified traveler- ★
- ★
- ★
- ★
- ★
4 非常に良い
直島を目指す人には便利
直島行きフェリー乗り場の目の前にあり、早朝出発には便利な宿。
建物は古いが一応改装されており、掃除も行き届いている。
シャワールーム、トイレは部屋毎に別に用意されているため、プライバシーも保たれている。
近くに日帰り温泉もある。スタッフは皆親切で、英語対応できるため外国人の宿泊客がほとんど。
ユニークで良い印象。2018年05月08日
hiromi- ★
- ★
- ★
- ★
- ★
4 非常に良い
心地よく安心して過ごすことができました。
初めての場所で一人旅で、不安もありましたが、スタッフの皆さんの暖かく心地よいお迎えと接客でリラックスして過ごすことができました。ありがとうございました。
2017年12月14日
e**u- ★
- ★
- ★
- ★
- ★
5 非常に良い
立地よしお部屋よし朝食よし
このお値段(朝食は別料金)で必要十分なすべてが揃っています。シャワーとトイレのブースは同フロア別所に設置されていましたが、お部屋の数だけ用意されお部屋名が書かれて専用の鍵で使わない間も施錠できプライバシーが保たれて快適でした。お部屋は狭いけど空っぽの押し入れに荷物を広げることができるため、意外と広く使えます。リネンも清潔で寝心地のいいベッドに浴衣付き。機能的に知恵が活かされ、安くても外せない要所は確実に押さえる工夫が凝らされた、ユニークなホテルです。
2017年07月22日
Michael- ★
- ★
- ★
- ★
- ★
5 非常に良い
Super close to the ferry port and train station, there are a great number of food options in the are, including at the Inn. A 7-11 around the corner offers anything else one might need.
カップルで旅行 2025年08月18日
??- ★
- ★
- ★
- ★
- ★
5 非常に良い
因為距離港口非常近,對於藝術祭跳島非常方便!且早餐可以預訂,物美價廉!工作人員的英文流利,溝通上也沒有問題!
グループ旅行 2025年08月04日
Justin- ★
- ★
- ★
- ★
- ★
5 非常に良い
Minh, Long, Mimi and the rest of the staff seem to be made for this job. My stay could not have been more comfortable and their happy, outgoing attitude was a complete joy.
2025年08月02日
Sara- ★
- ★
- ★
- ★
- ★
5 非常に良い
This place had a great vibe all around… very friendly and helpful staff… comfortable room and great cafe breakfast with a touch of Brooklyn! Very convenient for heading to Naoshima… very close to ferry port and train station. Can’t recommend enough!!!!
2025年08月02日
Sandie- ★
- ★
- ★
- ★
- ★
5 非常に良い
Staff were very friendly with lots of info on places to visit, and how to access them.
カップルで旅行 2025年07月29日
Kasper- ★
- ★
- ★
- ★
- ★
5 非常に良い
Super, simpelt og hjælpsomme
Det var fantastisk fra start til slut. Godt personale og meget hjælpsomme.
2025年07月20日
Joseph- ★
- ★
- ★
- ★
- ★
4 非常に良い
Excellent location for visiting art islands. Staff were super friendly and helpful. Breakfast was delicious — all homemade. Excellent coffee. Small rooms for those with private bathroom but water pressure in shower was amazing! Across the street from ferry to islands.
家族旅行 2025年07月16日
Alexandre- ★
- ★
- ★
- ★
- ★
5 非常に良い
Super !
2025年07月16日
Ney- ★
- ★
- ★
- ★
- ★
4 非常に良い
Luxury hostel
Stayed here with wife and two kids. Our room was very nice and clean, and staff was really friendly and made us feel welcome. Breakfast was delicious. I'd just point out that, given that the bathrooms are located outside the rooms (each room gets its own private bathroom, but they're all down the hall), it feels more like a hostel than a hotel, so keep that in mind.
2025年07月15日
Elizabeth- ★
- ★
- ★
- ★
- ★
5 非常に良い
Loved the robes and staff was so friendly. Very nice experience.
家族旅行 2025年07月09日
YungChang- ★
- ★
- ★
- ★
- ★
4 非常に良い
Good
2025年06月18日
YungChang- ★
- ★
- ★
- ★
- ★
4 非常に良い
不錯
2025年06月13日
Samuel- ★
- ★
- ★
- ★
- ★
5 非常に良い
Very friendly staff. All speak great english.
2025年06月12日
David- ★
- ★
- ★
- ★
- ★
5 非常に良い
Funky, laid back spot right across the street from the ferry dock. Wonderful service, fluent in English. Great bagels in the mornings! Quality jazz selections animated our entire stay. Definitely a modest place but you wint regret staying here.
家族旅行 2025年06月10日
Huayi- ★
- ★
- ★
- ★
- ★
4 非常に良い
We had a great experience staying here - the staff were warm and friendly, and the location could not be better.
The only thing to take note is that if you check in late (after 9pm), there is a late charge. We actually arrived at 11am to drop off our bags and asked if we can check in then so we didn't have to pay the late charge. We informed them we didn't need to access the rooms until later but just wanted to check in at that time but they were not able to accommodate us (not totally sure why?). Unfortunate but just take note before you book because this is not characteristic of other hotels!カップルで旅行 2025年05月21日
Debbie- ★
- ★
- ★
- ★
- ★
4 非常に良い
The staff spoke excellent English and they were super friendly. They went above and beyond to make you feel welcome and assist with anything you might need. The only downside really was the poor wi-fi speed/connection. It was really slow. But otherwise, I loved staying here and would come again if I ever visit the islands.
カップルで旅行 2025年05月12日
CLAUDIO- ★
- ★
- ★
- ★
- ★
3 良い
Hotel simples, localização ideal para pegar o ferry para Naoshima. Não gostei que o banheiro ficasse fora do quarto
2025年04月28日
Andrew- ★
- ★
- ★
- ★
- ★
4 非常に良い
We stayed here after a day trip to Naoshima island by ferry. The proprieter was very welcoming and helpful. The room was very small and had a private bathroom at the end of the hall, with its own key. Very close by is the wonderful Setouchi Onsen Tamano-yu that has extensive indoor and outdoor baths and a good restaurant.
2025年04月27日
Anita- ★
- ★
- ★
- ★
- ★
5 非常に良い
This is a unique stay, perfect for access to the port. Don’t expect a Holiday Inn but charming, quirky and staff exceeded my expectations.
2025年04月15日
Carol- ★
- ★
- ★
- ★
- ★
5 非常に良い
Great place to stay. Close to transport and dining options. Loved the breakfast especially the cappuccino.
2025年04月09日
Peter- ★
- ★
- ★
- ★
- ★
5 非常に良い
Charming 10 room Japanese style (no shoes) inn run by Vietnamese owner - he made our lattes himself - just minutes walk from the ferry line to Naoshima Island. Staff spoke English very well and referred us to 2 terrific local eateries and a public onsen down the street that we thoroughly enjoyed. Breakfast was included and terrific! Highly recommend for those looking for inexpensive, friendly and small scale.
カップルで旅行 2025年04月08日
Beatrice- ★
- ★
- ★
- ★
- ★
2 普通
À éviter
Hôtel qui ne mérite pas sa note.
Notre chambre n’avait pas de salle de bain dans la chambre mais dans un couloir. La pièce était minuscule, fenêtre très petite. Cloisons extrêmement peu épaisses. Pour le prix c’est à éviter. Ce serait bien de spécifier beaucoup plus clairement l’absence de salle de bain dans la chambre sur le site, cela permettrait de faire un meilleur choix.2025年03月28日
JI HYE- ★
- ★
- ★
- ★
- ★
4 非常に良い
좋습니다!
방문하려는 나오시마섬. 데시나섬에 가깝고 가격 대비 깨끗하고 조식도 좋았어요.
2025年03月05日
Shayne- ★
- ★
- ★
- ★
- ★
5 非常に良い
The staff was super nice, great location and very clean.
2024年12月22日
Ralf- ★
- ★
- ★
- ★
- ★
4 非常に良い
An excellent staff that catered to all your needs. An authentic ambience of Japanese hostelery. Domo onegaishimasu to Max and his gang Momo, Long, Minh and Mikko. We enjoyed your service and friendship immensely.
2024年12月09日
Ramiro- ★
- ★
- ★
- ★
- ★
5 非常に良い
The staff was incredible
家族旅行 2024年11月27日
Verified traveler- ★
- ★
- ★
- ★
- ★
5 非常に良い
Liten pärla med perfekt läge till Naoshima
Underbart litet hotell! Små rum men med egen fräsch dusch/toalett i korridoren.Fantastisk personal och perfekt läge för besök med båt till bl a Naoshima. Budgetfrukosten var jättegod. Rekommenderar absolut detta hotell, väldigt prisvärt.
2024年11月17日
Gary- ★
- ★
- ★
- ★
- ★
5 非常に良い
Super convenient spot for visiting the art islands! right across the street from the ferry. The staff are very friendly, helpful, and have excellent English skills.
カップルで旅行 2024年11月14日
Verified traveler- ★
- ★
- ★
- ★
- ★
4 非常に良い
Personnel très accueillant et serviable. Emplacement très pratique pour rejoindre le ferry. Petits déjeuners très copieux
2024年11月09日
Johannes- ★
- ★
- ★
- ★
- ★
5 非常に良い
Friendly helpful staff never had any better
2024年11月06日
Sébastien- ★
- ★
- ★
- ★
- ★
5 非常に良い
Un excellent choix
Personnel très accueillant et sympathique. Chambre style japonais. Un bon moment.
2024年10月26日
Maria Agustina- ★
- ★
- ★
- ★
- ★
5 非常に良い
Cálido y bonito hotel en excelente ubicación.
Hospedaje ideal para vivir la experiencia maravillosa de Naoshima y para conocer el bellísimo y cálido pueblo de Uno Port.
El trato es excepcional, cálido y cercano.
El desayuno es exquisito.
El personal súper atento y ameno, conversamos mucho con ellos y nos dieron muchas recomendaciones.
La ubicación es perfecta.
Las habitaciones son cómodas y limpias, los baños están fuera de la habitación, pero son privados, limpios y muy bonitos.
Quedamos encantados y sin dudas regresaremos.
Gracias ❤️2024年10月17日
Kevin- ★
- ★
- ★
- ★
- ★
5 非常に良い
Port Uno Inn is a cool, down-to-earth spot perfect for travelers heading to Naoshima. The vibe is super chill, with a casual, backpacker feel. After a day of exploring, grabbing a beer and burger here is just what you need. Plus, almost everyone staying here is going to Naoshima, so it’s easy to swap tips and chat about the galleries.
The location is ideal, right across from the ferry terminal, and the laundry facilities are a great bonus for longer trips. Ming, Long, and Takashi, who work there, are fantastic—friendly, welcoming, and always ready to help.
The breakfast is also worth mentioning—I loved the smoked salmon bagel. If you’re looking for a relaxed, friendly base to explore the area, this place is perfect.グループ旅行 2024年09月26日
Vincent- ★
- ★
- ★
- ★
- ★
5 非常に良い
VERRY NICE AND SPECIOUS ROOM.
STAFF WAS ALL THE TIME THERE TO HELP YOU家族旅行 2024年09月19日
Lauro Francisco- ★
- ★
- ★
- ★
- ★
3 良い
El baño es privado pero esta fuera de la recamara
2024年09月16日
Amelia- ★
- ★
- ★
- ★
- ★
4 非常に良い
Very friendly staff and incredibly clean! Very comfortable stay in the traditional room
カップルで旅行 2024年07月08日
Gilles- ★
- ★
- ★
- ★
- ★
5 非常に良い
un accueil très chaleureux de tout l’équipe, des chambres traditionnelles et confortables et un très bon petit déjeuner je recommande vivement
2024年05月31日
Kait- ★
- ★
- ★
- ★
- ★
5 非常に良い
The staff really worked hard to take care of any issue I had, or to make sure that I knew where I was going on excursions and that I had good Information on the activities I wanted to do.
2024年05月26日
Helle- ★
- ★
- ★
- ★
- ★
4 非常に良い
Ikke sin pris værd
Fantastisk service af den unge receptionist! Talte godt engelsk og meget opmærksom og imødekommende.
Beliggenhed ifht bus og færge helt i top.
Selve rummet er ikke pengene værd - det er simpelt, og du kan tydeligt høre de andre gæster ved siden af, overfor og ovenpå. Samt larm fra vejen udenfor. Bruser og toilet ligger ude på gangen.2024年05月17日
David- ★
- ★
- ★
- ★
- ★
5 非常に良い
Quite a grungy hostel type of establishment, but with very personable and helpful staff, and in a great location for visiting Naoshima Island
カップルで旅行 2024年04月25日
Peter- ★
- ★
- ★
- ★
- ★
5 非常に良い
Loved the way they asked to take a photo of us as we were leaving - not for security, but because they were interested and like their guests!
2024年04月08日
Brian- ★
- ★
- ★
- ★
- ★
5 非常に良い
Superb!
Uno Port was great. A cute hotel right across the street from the port with the ferry that takes you to Naoshima Island. The owner Max and his staff were kind, friendly, accommodating, and professional. Me and my partner would stay here again in a heartbeat. I also recommend getting the breakfast included option as breakfast was also delicious both times we had it there during our stay. Thank you Max and staff!
2024年04月04日
WING SZE- ★
- ★
- ★
- ★
- ★
5 非常に良い
The staff are very nice there, speaking well English, and they even know about the nearby Onsen information which is tattoo friendly for foreigners. Well done.
2024年03月18日
Maryanne- ★
- ★
- ★
- ★
- ★
5 非常に良い
Nous reviendrons avec plaisir !
Un hôtel idéalement situé juste en face du port. Un patron et une équipe vraiment chaleureuse et au petit soin qui vous explique comment vous rendre sur les îles et fournissent même une carte. Gros point positif tout le monde parle anglais ! La salle de bain/toilette se trouve à l’extérieur des chambres mais sont juste à côté et sont privatifs. Chambre traditionnelle mais très confortable. Un grand merci à tout l’équipe pour ce super séjour !
2024年02月10日
Eldo- ★
- ★
- ★
- ★
- ★
4 非常に良い
Exceptionally friendly staff! You were made to feel welcome. Very clean designated bathroom down the hall. Would stay here again. So convenient for taking ferry to see the island art.
カップルで旅行 2023年11月19日
Verified traveler- ★
- ★
- ★
- ★
- ★
5 非常に良い
Naoshima + Teshima trip 5 stars
Very friendly staff. Rooms as in pictures. Great breakfast. Possibility to store luggage. Close to the ferry terminal. All in all a pleasent experience.
2023年11月09日
地図・アクセス
| 住所 | 岡山県玉野市築港 1-4-4 |
|---|---|
| 交通 | ウノ・ポート・インは、玉野市の広域公園内にあります。宇野港まで歩いて 5 分、瀬戸内海国立公園まで徒歩 9 分の場所です。 このホテルは、ベネッセハウス ミュージアムまで 8.5 km、おもちゃ王国まで 8.9 km の場所に位置しています。 |
| 駐車場 | あり(無料) |
| 周辺情報 |
▼もっと見る |
基本情報
- お食事・レストラン
- お食事にはレストランや、このホテルにある コーヒーショップ / カフェをご利用ください。バー / ラウンジでお好みのドリンクを召し上がり、喉の渇きを癒してください。オーダー形式の朝食を毎日 7:30 ~ 9:30 までお召し上がりいただけます (有料)。
- 館内施設・サービス
- ・施設からの距離 (メートル) - 150
- ・オーガニックフード
- ・近隣駐車場 (無料)
- ・ベッドシーツの交換 (要リクエスト)
- ・WiFi (無料)
- ・駐輪場利用可
- ・バー / ラウンジの数 : 1
- ・入り口までの道が明るい
- ・上層階は階段でのみアクセス可
- ・タオルの交換 (要リクエスト)
- ・庭園
- ・全照明の少なくとも 80% は LED を使用
- ・ウォーターサーバーの使用をお客様に積極的に推奨
- ・車椅子対応 – なし
- ・施設からの距離 (フィート) - 492
- ・手荷物保管サービス
- ・フロントデスク (時間限定)
- ・ウォーターサーバー
- ・安全な自転車用倉庫
- ・蚊帳
- ・朝食 (有料)
- ・レストランの数 : 1
- ・客室清掃 (要リクエスト)
- ・全館禁煙
- ・コーヒーショップ / カフェの数 : 1
- ・スナック バー / デリ
- ・ランドリー設備
- ・駐車場 (無料)
- ・敷地外駐車場の利用には予約が必要
- ・テラス
- 客室設備・アメニティ
- ・レストラン食事ガイド
- ・タオルあり
- ・追加布団 (無料)
- ・ベッドシーツあり
- ・禁煙
- ・小型冷蔵庫
- ・石鹸
- ・歯ブラシ / 歯磨き粉の備え付けあり
- ・現地の地図
- ・トイレットペーパー
- ・シャワーのみ
- ・シャンプー
- ・ベッドシーツの交換 (要リクエスト)
- ・スリッパ
- ・バスローブ
- ・専用バスルーム (客室外)
- ・羽毛掛け布団
- ・ヘアドライヤー
- ・客室清掃 (毎日)
- ・冷房
- ・WiFi (無料)
- ・タオルの交換 (要リクエスト)
- ・客室清掃 (要リクエスト)
- ・専用バスルーム
- ホテルご利用にあたって
【チェックイン】
15:00 〜 21:00
チェックインの最低年齢 : 21 歳【チェックインに関する特記事項】
フロントデスクは、毎日 7:30 ~ 21:00 まで営業しています。48 時間前までに施設にご連絡の上、チェックインをご手配ください。連絡先は予約確認通知に記載されています。ご到着が 21:00 を過ぎる場合は、事前に施設までご連絡ください。連絡先は予約確認通知に記載されています。事前に宿泊施設にご連絡のうえ、チェックインの手順をご確認ください。時間帯によっては、フロントデスクのスタッフは不在となります。【チェックアウト】
11:00【ご宿泊に関して】
- 施設の定める利用規約に従って、追加ゲスト料金がかかる場合があります
- 場合により、チェックイン時に政府発行の写真付き身分証明書と付随費用精算のためのクレジットカード / デビットカードのご提示、または現金でのデポジットのお支払いが必要です
- 宿泊施設への要望は、チェックイン時の状況によりご希望に添えない場合があり、内容によっては追加料金が発生することがあります。対応は確約ではございませんのでご了承ください
- 施設でのお支払いには、クレジットカード、モバイル決済をご利用いただけます。現金ではお支払いいただけません
- この宿泊施設は、到着前に宿泊者のクレジットカードの事前承認を行う権利を有します。
- この施設には、バルコニー、パティオ、テラスなど安全面からお子様に適さない可能性がある屋外スペースがあります。ご心配な場合は、ご到着前に施設にお問い合わせの上、適切な客室に宿泊できるか確認することをおすすめします。
【サービス料に含まれていないもの】
レイトチェックインは 1 室 1 時間あたりの料金です : 午後 9 時 ~ 午後 10 時は 1,500 円、午後 10 時 ~ 午後 11 時は 1,800 円、午前 0 時以降は 2,300 円。【オプションの追加料金】
- 朝食 (オーダー形式の朝食) の料金 (概算) : 1 名あたり 1500 JPY
- 21:00から 深夜 0 時までのチェックインに適用されるレイトチェックイン料金
- 空室状況により、レイトチェックアウトをご利用いただけます (有料)
上記項目以外にも、現地にてお支払いが必要な場合があります。また料金とデポジットには税金が含まれていないことがあり、金額が変更される場合があります。
※食事つきプランでご予約をお申し込みの場合は、プランに料金が含まれています。但し、添い寝のお子様のお食事代金は、別途現地にてお支払いいただく場合がございます。
詳細はご宿泊施設までお問い合わせください。【その他の情報】
- 日本の厚生労働省は、インやホテル、モーテルなどを含むいかなる種類の宿泊施設でも、日本に居住してない海外のお客様の宿泊に際し、国籍および旅券番号の確認とパスポートのご提示を義務付けております。また、各宿泊施設には、ご宿泊者全員のパスポートをコピーし保存する義務が課せられておりますので、ご協力をお願いいたします。
【ペット】
・ペット不可【お子様及びエキストラベッドのご利用について】
・この施設には大人の方のみ宿泊できます。
・可動式ベッド / エキストラベッドはご利用いただけません
・ベビーベッドはご利用いただけません
- すべての写真(54)
- 部屋(36)
- 食事(7)
- 施設(6)
- 外観(2)
- 内観(3)
































































































































